東晟產品分類
- 華為手機
注塑機是制造塑料制品(手機密封件)的核心設備,通過..
- 天鍛壓力機
深度剖析天鍛壓力機在液壓缸密封件(耐壓70MPa)、萬..
- 格力集團(格力空調)
格力電器作為綜合性家電企業,其空調、冰箱、壓縮機..
- 三一重工
三一重工股份有限公司,三一重工,機械密封件全液壓壓..
- 汽車減震器Y形密封圈耐油性測試技術規范?
- 在汽車減震器密封系統中,Y形密封圈的耐油性直接影響液壓油封存效果與部件使用..
- 氟塑料制品在光伏產業中的創新應用!
- 隨著全球光伏裝機量突破1TW大關,?氟塑料制品?作為關鍵封裝材料正經歷技術革..
- 行業?:鐵路液壓制動密封件抗震動,故障率降低8..
- 在高速鐵路制動系統中,液壓密封件的抗震性能直接關系到列車運行安全與維護成..
- 密封件材質有哪幾種?從丁腈橡膠到四氟:7大密封..
- 工業設備密封效能的核心在于?密封件材質?的科學選型,其性能直接決定系統在..
- PTFE密封件如何滿足制藥行業的無菌要求??
- 在無菌藥品生產中,密封系統需同時突破化學耐受性、微粒控制及微生物屏障三大..
- 泵閥密封件安裝專業指南:規避典型失效風險?
- 泵閥密封件?的安裝精度直接影響設備壽命與運行安全,統計分析顯示?60%的密封..
- 耐250℃高溫橡膠密封件熱穩定性?
- 在高溫工業設備密封領域,?橡膠密封件的熱穩定性?直接決定設備運行安全性與..
- 氟塑料制品與金屬復合制品對比研究?
- 在工業材料創新領域,氟塑料制品與金屬復合制品的性能對比始終是技術決策的關..
- 問題點?:液壓旋轉接頭泄漏?碳纖維增強密封件防..
- 液壓旋轉接頭作為工程機械的核心部件,其泄漏問題直接影響設備可靠性與使用壽..
- 食品級密封墊圈(EPDM墊片)產品案例 ? 食品機械..
- 食品級密封墊圈(EPDM墊片)在食品機械管道系統中扮演著至關重要的角色,其優異..
馬鞍型防塵圈DAM
- 代碼:馬鞍型防塵圈DAM
- 速度≤(m/s):1
- 溫度℃:-30/+110
- 材料:聚氨酯橡膠(PU)/ 氟橡膠(FKM)/ 丁晴橡膠(NBR)
- 介質:液壓油、阻燃液、水、氣
- 應用:工業設備、機床、油壓機
- 訂購熱線:400-0087-996
|
-防塵圈
馬鞍型防塵
DAM |
![]() |
馬鞍型防塵DAM - 防塵圈
技術參數> Technical Data
壓力>
Pressure[Mpa
溫度>
Temperature(℃>)
速度
Sliding speed(m/s)
介質>
Medium
標準產品
tandard
-30/+110
1
液壓油、阻燃液、水、氣
Minderal oil based hydraulic fluids, barely flammable hydraulic fluids,water,air and others.
馬鞍型防塵DAM - 防塵圈
|
材料Material
|
|
設計標準或互換 Standard or can fit the groove |
|
|
標準設計 Standard |
NBR/PU(Shore A 90) |
設計時可參考:特瑞堡密封件(Trelleborg公司)DA17系列、 鼎基油封(DZ公司)DH-07系列標準。 以上資料僅供參考 |
|
|
訂貨范例 Order Example for standard version:
訂貨號Order Code DAM 100*108*6
|
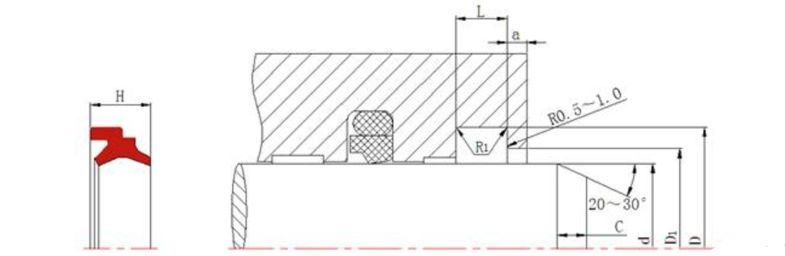
馬鞍型防塵DAM - 防塵圈
|
Installation Dimension table based on Metric Size
公制溝槽尺寸(mm) |
||||||
|
軸徑 d h9 |
溝槽底徑 D H9 |
槽寬 L+0.2 |
D1 |
a min |
H |
C≥ |
|
20~100 |
d+8 |
6 |
d+3.5 |
2 | 8 | 5 |
|
105~200 |
d+12 |
8.2 |
d+5 |
3 | 11 | 5 |
|
205~440 |
d+15 |
9.5 |
d+7 |
5 | 13 | 7 |
一、避免高溫
密封件必須避開強光照射,避免密封件被空氣中臭氧侵蝕或提早老化。各種密封其性能影響因素是不同的,如機械密封(填料密封等)影響因素有溫度、介質、磨損、所承受壓力等。
密封件作為密封配件之一,在工業生產行業中應用廣泛,且用量之大。有些企業都會儲備些常用的密封件以備不需之需。讓人擔心的事就是密封件保存環境,而東晟密封件告訴您……如何貯存密封件?如果密封件存儲不好的話,就會造成密封件大量浪費。下面具體看一下密封件都有哪些貯存條件,才能更好地保存密封件。

注:各種密封其性能影響因素是不同的,如機械密封(填料密封等)影響因素有溫度、介質、磨損、所承受壓力等。
馬鞍型防塵DAM - 防塵圈
| 熱 門 產 品 推 薦 | ||
![]() |
![]() |
![]() |
|
介質:液壓油、阻燃液、水、氣; 材料:NBR/PTFE FKM |
介質:標準液壓油 材料:NBR/PTFE FKM |
介質:液壓油、阻燃液、水、氣 材料:PTFE+PU |













