東晟產品分類
- 華為手機
注塑機是制造塑料制品(手機密封件)的核心設備,通過..
- 天鍛壓力機
深度剖析天鍛壓力機在液壓缸密封件(耐壓70MPa)、萬..
- 格力集團(格力空調)
格力電器作為綜合性家電企業,其空調、冰箱、壓縮機..
- 三一重工
三一重工股份有限公司,三一重工,機械密封件全液壓壓..
- 汽車減震器Y形密封圈耐油性測試技術規范?
- 在汽車減震器密封系統中,Y形密封圈的耐油性直接影響液壓油封存效果與部件使用..
- 氟塑料制品在光伏產業中的創新應用!
- 隨著全球光伏裝機量突破1TW大關,?氟塑料制品?作為關鍵封裝材料正經歷技術革..
- 行業?:鐵路液壓制動密封件抗震動,故障率降低8..
- 在高速鐵路制動系統中,液壓密封件的抗震性能直接關系到列車運行安全與維護成..
- 密封件材質有哪幾種?從丁腈橡膠到四氟:7大密封..
- 工業設備密封效能的核心在于?密封件材質?的科學選型,其性能直接決定系統在..
- PTFE密封件如何滿足制藥行業的無菌要求??
- 在無菌藥品生產中,密封系統需同時突破化學耐受性、微粒控制及微生物屏障三大..
- 泵閥密封件安裝專業指南:規避典型失效風險?
- 泵閥密封件?的安裝精度直接影響設備壽命與運行安全,統計分析顯示?60%的密封..
- 耐250℃高溫橡膠密封件熱穩定性?
- 在高溫工業設備密封領域,?橡膠密封件的熱穩定性?直接決定設備運行安全性與..
- 氟塑料制品與金屬復合制品對比研究?
- 在工業材料創新領域,氟塑料制品與金屬復合制品的性能對比始終是技術決策的關..
- 問題點?:液壓旋轉接頭泄漏?碳纖維增強密封件防..
- 液壓旋轉接頭作為工程機械的核心部件,其泄漏問題直接影響設備可靠性與使用壽..
- 食品級密封墊圈(EPDM墊片)產品案例 ? 食品機械..
- 食品級密封墊圈(EPDM墊片)在食品機械管道系統中扮演著至關重要的角色,其優異..
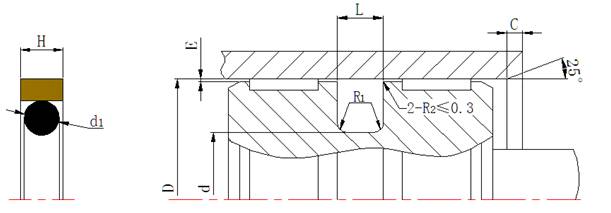
孔用組合密封圈SPGO
- 代碼:SPGO
- 壓力≤(MPa):35
- 速度≤(m/s):1.5
- 溫度℃:-35/+160
- 材料:PTFE/NBR/FKM
- 介質:液壓油、阻燃液、水、氣
- 應用:挖掘機,標準油缸,移動式液壓設備,油壓機
- 訂購熱線:400-0087-996
| 技術參數 Technical Data | |||||||||||||||
| 壓力Pressure[Mpa] | 溫度Temperature(℃) | 速度Sliding speed(m/s) | 介質Medium | ||||||||||||
| 標準產品Standard | 35 | -35/+160 | 1.5 |
液壓油、阻燃液、水、氣 Minderal oil based hydraulic fluids, barely flammable hydraulic fluids,water,air and others. |
|||||||||||
| 材料Material |
設計標準或互換 Standard or can fit the groove |
||||||||||||||
| O 圈 O ring | 滑環slide ring | 設計選用時可參考:NOK密封(NOK公司)SPGO系列標準。 以上資料僅供參考 | |||||||||||||
| 標準設計Standard | NBR |
PTFE-青銅 PTFE-Bronze |
|||||||||||||
| 特殊Standard | FKM |
PTFE 碳纖維 PTFE-carbon |
|||||||||||||
| 工作壓力 pressure | 160bar | 250bar | 400bar | ||||||||||
| 擠出間隙 Max Gap E | E≤0.6mm | E≤0.4mm | E≤0.2mm | ||||||||||
訂貨范例 Order Example for standard version:
軸徑 Diameter d=100mm
訂貨號 Order Code HBTS 100*115.5*6.3
公制溝槽尺寸(mm)
Installation Dimension table based on Metric Size
| 缸徑 D H9 | 溝槽底徑 d -0.2 | H | L+0.2 | O型圈線徑d1 | R1≤ | ||||||||||
| 20~50 | D-6 | 3 | 3.2 | 2.62 | 0.4 | ||||||||||
| 30~60 | D-8.5 | 3.8 | 4 | 3.55 | 0.8 | ||||||||||
| 63~160 | D-14 | 6.3 | 6.5 | 5.3 | 1.2 | ||||||||||
| 170~400 | D-20 | 9.8 | 10 | 8.6 | 1.6 | ||||||||||
密封件作為密封配件之一,在工業生產行業中應用廣泛,且用量之大。有些企業都會儲備些常用的密封件以備不需之需。讓人擔心的事就是密封件保存環境,而東晟密封件告訴您……如何貯存密封件?如果密封件存儲不好的話,就會造成密封件大量浪費。下面具體看一下密封件都有哪些貯存條件,才能更好地保存密封件。
一、避免高溫
密封件必須避開強光照射,避免密封件被空氣中臭氧侵蝕或提早老化。各種密封其性能影響因素是不同的,如機械密封(填料密封等)影響因素有溫度、介質、磨損、所承受壓力等。

注:各種密封其性能影響因素是不同的,如機械密封(填料密封等)影響因素有溫度、介質、磨損、所承受壓力等。












